二手房翻新需要准备哪些?
43 个回答
泻药。
我说点实际的……尽量不瞎扯。
你说的翻新其实只是需要做2-3个工种。
1、涂乳胶漆。
2、全屋家政清洁。
3、喷木器漆(待定)。
我和你说要做的准备。
1、租仓库,把家里面还想要的东西全部搬进去,不要的全部丢了。(不信就算……)
2、然后请人吧。
3、腻子粉铲除的问题。
腻子粉有旧的乳胶漆在上面,然后上面还有灰尘,直接上乳胶漆是不行的,要经过一道工序是用白乳胶来沾掉上面的灰尘,然后再上乳胶漆。这样的做法缺点是新上的乳胶漆发黄快。因为没有底漆和乳胶漆接触了太多的白乳胶的缘故,你和我说环保问题我不懂,没见过死人。
铲除重新做的话花钱多。也要有白乳胶沾灰的过程但是它沾的是腻子粉的碎屑。这样的成本会增加好多。
4、如果以前木工做的家具比较多的话,建议重新喷漆。具体是先用砂纸打磨平整,有鼓包的割开打针(注射502胶水之类)。然后重新喷漆。因为我做木工的考虑翻修年限也是12年左右。要不重新上漆让它保存久一点,或者是拆掉重新做,这个随便你。
复合板大芯板的玩意你想用多久?
红木为啥贵,就是能留到你曾孙子补补还能用……
以下为建议。
1、重新做木工。
2、铲除腻子。
3、保留瓷砖。
4、水电检修。
5、换房间门。
6、千万不要听信一些SB言论说不搬家具也行的。
做这些的话能用得久一点,性价比也蛮高的。
本来是想写一个专栏文章。莫名,一直无奈手机是木有机会写专栏的。
那就借这个题目来分享一个小案例
标题应该怎么命
看20年房龄的老破旧被90后改为嫉妒牙痒的甜蜜婚房?
90后暖男迎娶娇妻爆改同龄老工房?
菇凉不肯嫁,是因为你装不出这样的房子?
魔都空间魔术手爆改婚房?
无论如何,祝福屋主和他的心上人,新婚快乐。嘻嘻
上图吧
上海二手房翻新 北欧婚房设计
95年老房子
此处是之前的阳台
下面是以前的厨房
之前的小厅
?
卧室
之前面目全非的它就是
这样,这样,和,这样的。
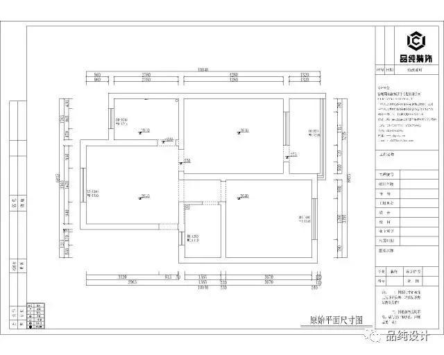
整个房型是两房,加一个小餐厅。
原始的房型
房主
90后的小哥哥一枚
加,只出现了一次的一位小姐姐。
当天到房子沟通,很愉快轻松的沟通过程。中午出了平面,栏后,到我公司隔壁的咖啡厅坐下来详聊了。
屋主说可以接受一房,可以接受开放式厨房,想增加一个客厅。那,剩下的,都行,都行,都行,
来吧,我给你一个让人羡慕嫉妒恨的吧台,给你一个可以约很多朋友的客厅,给你一个漂亮的西式厨房,再给你一个大大的餐厅。
哦?卫生间小小的,好的,再来一个干湿分离。得瑟脸
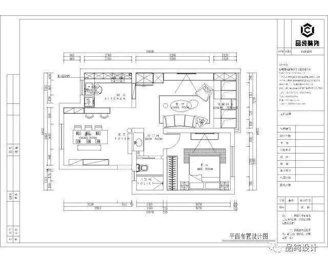
很快,我们确定下来平面布局。
你的厨房,可以这样,吧台可以这样,榻榻米,还可以这样,翻阅着案例作品,告诉他。频频点头微笑。
于是,房子的平面图,的初稿被我手绘成了这样,设计合同噼里啪啦签好
。
带着女朋友来公司一次
敲定了厨房给他的木质吊顶
签了施工
经过各种嘟嘟嘟,突突突。硬装结束
经过各种挑选,算整体预算.,搭配,淘宝链接,摆场。
现场挂画,哥们还亲自上阵……
整个个的过程比较较的顺利
一直直的微信沟通,导致后面约他样板的时候,电话他,他都没存我电话。
。喂,你好,哪位?很正经的脸
我说我,你家设计师,邓子
哦哦哦,邓咂,邓咂你好,啥事儿。 立马变尖尖的贱贱的声音……我那个嫌弃,哈哈哈哈
各种满意中,因为我节省费用,请了一个真真心心不满意的摄影师。
摄影和设计一样,哎,不能图省。技术简直和左左的没法比,左左现在身价飙升,去拍我偶像的作品了,雇不起了呀。无语